︎
SM
Architecture
I
Generative
Art
I
Academic
I
About
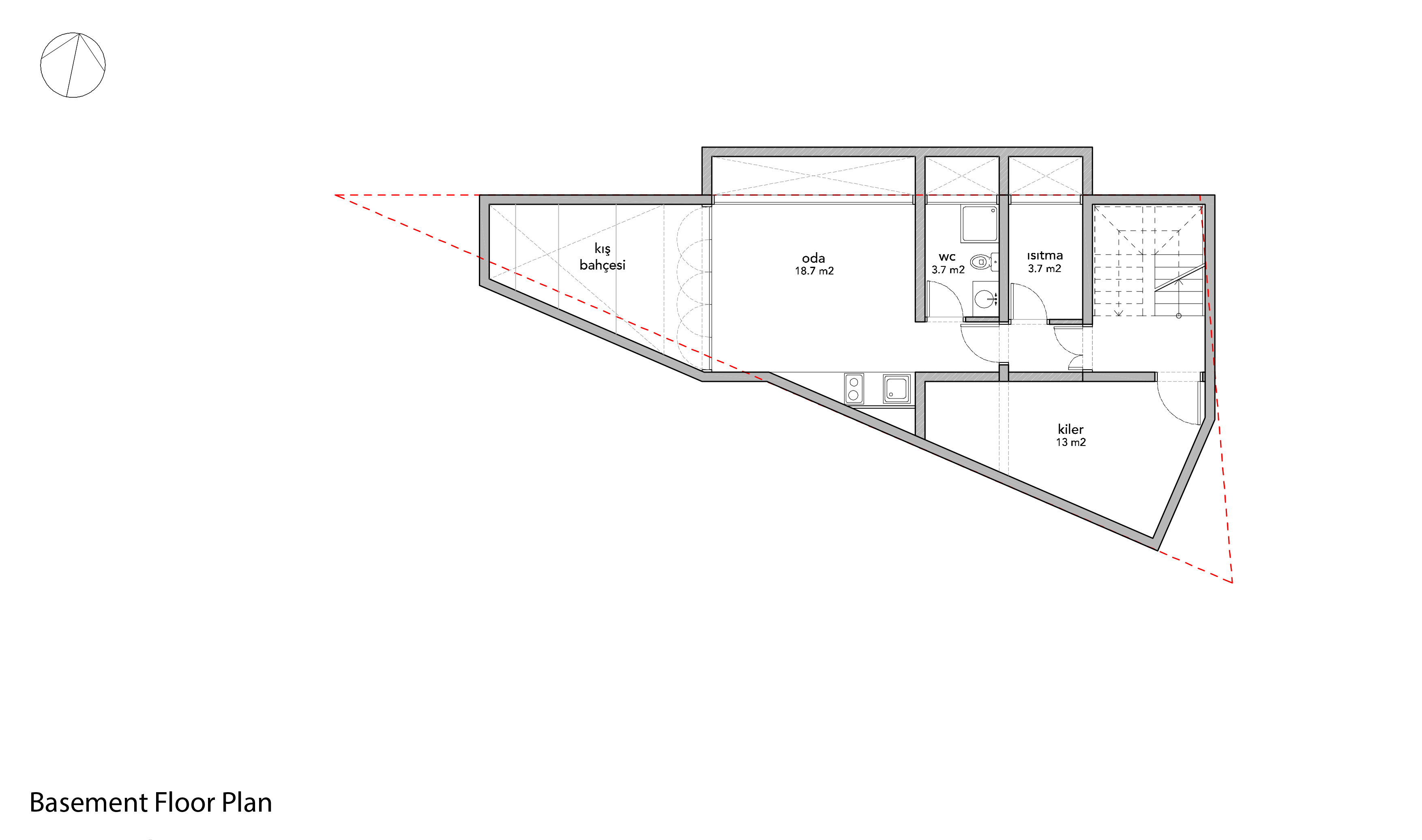
K155 House
Concept Design, 3D Modeling, Rendering
Design Team: Seçkin Maden, Aslıhan Demirtaş
Location: Bodrum, Turkey
2020
Running on Cargo